Front Elevation - Before & After
New Circle Driveway & Landscaping
Renovated Entry Foyer
Living Room - Before & After
Renovated Living Room
Living Room Fireplace - Before & After
Renovated Living Room
Renovated Entry Foyer
Renovated Dining Room & Kitchen w/ New Archway
Renovated Dining Room & Kitchen w/ New Archway
Kitchen - Before & After
Renovated Kitchen & Dining Room w/ New Archway
Restored Staircase @ Entry Foyer
Restored Staircase @ Landing
New 3rd Floor Staircase to New
Bedrooms in Renovated Attic Space
Master Bedroom (2nd Floor) - Before & After
Master Bedroom (2nd Floor) - Before & After
Master Bathroom - Before & After
New Basement Living Area & Fireplace
New Basement Bathroom
Rear Elevation - Before Attic Dormer Addition
(After Photo COMING SOON)
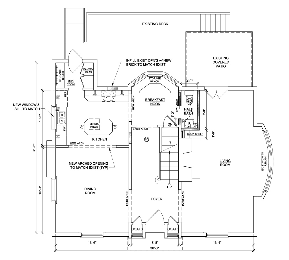
Proposed First Floor Plan
Proposed Second Floor Plan
Proposed Third Floor Plan
Proposed East Elevation
Proposed North Elevation
Proposed Stair & Dormer Section


























